Antwort schreiben 
 
Themabewertung:
  • 0 Bewertungen - 0 im Durchschnitt
  • 1
  • 2
  • 3
  • 4
  • 5
BWM Auswahl für Keller mit Problemen
04-01-2019, 18:50
Beitrag: #1
BWM Auswahl für Keller mit Problemen
Hallo.
Um meine Frage zu erklären muss ich etwas ausholen
Alle Beiträge dieses Benutzers finden
Diese Nachricht in einer Antwort zitieren
04-01-2019, 19:49
Beitrag: #2
RE: BWM Auswahl für Keller mit Problemen
Okay aber schreibst du es dann hier rein?
Alle Beiträge dieses Benutzers finden
Diese Nachricht in einer Antwort zitieren
04-01-2019, 20:20
Beitrag: #3
RE: BWM Auswahl für Keller mit Problemen
Irgendwie wurde mein Text verschluckt.

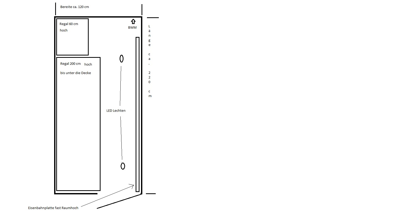
Miene Wohnsituation ist in einem kleinen Mehrfamilienhaus (2 Parteien), ich bin zwar der Eigentümer, habe aber den alten Besitzer durch Wohnrecht noch mit als Mieter im Haus. Laut Kaufvertrag darf ich in gemeinschaftlich genutzten Bereichen noch keine baulichen Veränderungen vornehmen (keine neun Kabel verlegen). Ich benötige aber etwas Licht in meinem Kellerabteil.
Der Keller 120x220x200 cm ist ein Geschlossener Raum, lediglich die Lattentür ist oben und unten ca. 15 cm offen. Diese Tür ist aber sehr flexibel und wackelt auch in geschlossenen Zustand etwas. Ein versuch über Magnetkontakt oder Öffnugsschalter funktioniert nicht (es brennt dann abends das Licht)
Ich habe zurzeit meine Kellerbeleuchtung über einen ABUS Duplex Bewegungsmelder laufen. Dieser Steuert über ein ausschaltverzögerndes Relais zwei LED Leuchten. Stromversorgung läuft über die 12 V Gleichspannung der Klingelanlage.
Leider Reagiert dieser nicht Zuverlässig (nur der MW teil spricht immer an). Dies ist sicherlich auch der Raumgröße geschuldet.
Da aber der ältere Herr des Öfteren (auch nachts) gerne im Haus spazieren geht und mich über jede Veränderung informiert, brauche ich ein „Fehlalarmfreie“ BWM- Erkennung (deshalb der Duplex).
Welcher BWM könnte ich nehmen oder wie kann ich den bestehenden Verändern.

Anbei ein Lagebild


Angehängte Datei(en) Thumbnail(s)
   
Alle Beiträge dieses Benutzers finden
Diese Nachricht in einer Antwort zitieren
05-01-2019, 11:49
Beitrag: #4
RE: BWM Auswahl für Keller mit Problemen
Warum benutzt du nicht einfach einen Schalter für dein Licht?

In fast allen Fällen sitzt der Fehler vor dem Monitor.Big Grin
Gruß Thomas
Für die Richtigkeit, meiner Angaben, gebe ich keine Garantie.
Alle Beiträge dieses Benutzers finden
Diese Nachricht in einer Antwort zitieren
05-01-2019, 14:14
Beitrag: #5
RE: BWM Auswahl für Keller mit Problemen
Ich kenne das Teil selber zwar nicht, aber könnte der Part aus der Anleitung weiterhelfen?

Betrieb und Ausrichtung Vertikale Ausrichtung: Die Leiterplatte kann auf verschiedene vertikale Einstellungen ausgerichtet werden (Short und Long). Dazu müssen Sie die Platine herausnehmen und in der entsprechenden Position (Short/Long) wieder einsetzen. Standardeinstellung ist Long.

Einstellung des Impulszählers: Der Impulszähler regelt die Anzahl von Impulsen, die erkannt werden müssen, bevor der Melder das Alarmrelais öffnet. Die Einstellung des Impulszählers kann über die jeweilige Jumperstellung verändert werden. Ist der Jumper über beide PINs gesteckt (Werkseinstellung) ist die Impulswahl 2, wenn er nur sich nur auf einem PIN befindet, benötigt der Melder einen Impuls bevor er auslöst. Hinweis: Verwenden Sie für die Variante 3 ausschließlich Impulswahl 1.
Alle Beiträge dieses Benutzers finden
Diese Nachricht in einer Antwort zitieren
06-01-2019, 14:38
Beitrag: #6
RE: BWM Auswahl für Keller mit Problemen
Danke erstmal für die Antworten.

Eine Anbringung eines lichtschalters ist aus Platzgründen nicht möglich.

Deshalb hatte ich mich für eine BWM entschieden und auf grund des zur verfügeungstehenden Stromes ist die wahl auf einen für Alarmanlagen.

Die Anleitung und das Netz habe ich auch schon zur hilfe bei der Einrichtung genommen. Die Änderung der Leiterplatte ist in der Anleitung falsch beschriebn, mann kann sich eine longrange Linse dazukauf um die Distans zu erhöhen ( ich will sie ja eher verringern). Die empfinlichkeit habe ich schon auf das niedirigste eingestellt (wobei ich vermute das dies nur den MW Teil betrift) und die Impulse auf 1 gesetzt. habe etwas mit verdrehen und Neigung experimentiert aber kein relativ zuverlässige Stellung gefunden ;-( . Er reagiert nur wenn man genau davor steht, was wohl der Höhe der Anbringung Geschuldet ist. Eine drehung um 180 ° habe ich noch nicht versucht , ob das was bringt?
Alle Beiträge dieses Benutzers finden
Diese Nachricht in einer Antwort zitieren
06-01-2019, 14:51
Beitrag: #7
RE: BWM Auswahl für Keller mit Problemen
Ich werde aus der Zeichnung so direkt nicht schlauer.
Der Bwm schau direkt auf dennEingang?
Dann wird es relativ klar, da BWMs bei Durchschreitung ausloesen, bei direktem Zulauf auf denselben kann es zur Nichtausloesung kommen.
Dewegen spricht dein MWteil an, der IRTeil eher nicht.
Veraendere mal den Einstellungswinkel mit ei oder zwei Unterlegscheiben ubd schau, obs besser wird.

Wahre Männer lesen keine Bedienungsanleitung!
Erfahrung ist eine nützliche Sache.
Leider macht man sie immer erst kurz nachdem man sie brauchte. (Goethe)
Alle Beiträge dieses Benutzers finden
Diese Nachricht in einer Antwort zitieren
Antwort schreiben 


Möglicherweise verwandte Themen...
Thema: Verfasser Antworten: Ansichten: Letzter Beitrag
  Hilfe bei Auswahl einer Alarmanlage Goenore12 4 1.053 30-08-2025 10:34
Letzter Beitrag: sicherheitstechnik-siegen
  Passender bwm für Radweg Daniel J 21 9.752 30-01-2022 21:34
Letzter Beitrag: Daniel J
  Planung neuer EMA, Satel vs. Visonic => Frage zur Auswahl soerenG 29 16.480 28-04-2021 22:12
Letzter Beitrag: soerenG
  Zwei Zentralen zur Auswahl - Meinungen bitte Holzwurm 0 2.914 01-07-2019 08:03
Letzter Beitrag: Holzwurm
  Bitte um Hilfe für Auswahl EMA und Anbieter Clermond 35 25.134 21-12-2018 09:52
Letzter Beitrag: Clermond
  Auswahl geeignetes Alarmsystem Yannic 0 2.637 10-12-2016 19:56
Letzter Beitrag: Yannic
question Hilfe bei Positionierung BWM in Eingangsbereich? kermit330ci 3 5.160 22-11-2016 20:47
Letzter Beitrag: Loenne
question Position BWM bzgl. Fenster? kermit330ci 6 6.074 21-11-2016 21:43
Letzter Beitrag: Jens Knoche
  Ist die Auswahl so in Ordnung? Charlie 18 14.493 22-04-2016 08:03
Letzter Beitrag: Jens Knoche
  Auswahl des passenden Herstellers für EMA selbermacher12 14 12.055 18-03-2016 14:58
Letzter Beitrag: Animal



Benutzer, die gerade dieses Thema anschauen: 1 Gast/Gäste