|
Empfehlung für Kamerastandorte und passende Kameras (Einfamilienhaus)
|
|
08-06-2024, 14:36
Beitrag: #1
|
|||
|
|||
|
Empfehlung für Kamerastandorte und passende Kameras (Einfamilienhaus)
Hallo zusammen
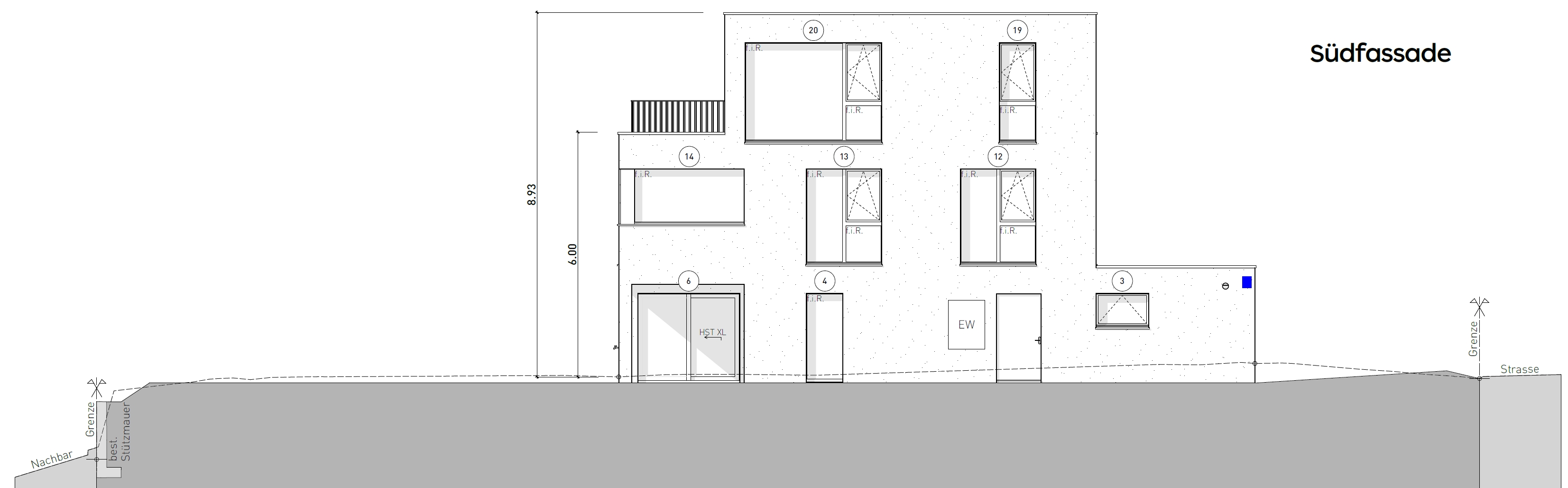
Wir realisieren einen Neubau und wurden von unserem Generalunternehmer gefragt, wo wir gerne die Standorte für die kabelgebundenen Kameras zur Aussenraumüberwachung haben möchten .Der Elektriker hat eine Vorschlag gemacht. Da wir von der ganzen Thematik leider keine Ahnung habe, würden wir uns sehr über die Einschätzung der Forumsteilnehmer freuen:
Situation
Vorschlag Elektriker Die vom Elektriker vorgeschlagenen Standorte habe ich blau eingezeichnet auf den Zeichnungen der vier Hausseiten:
Kameras Hier ist uns wichtig, dass
Nice to have wäre, wenn die Kamera
Danke, dass du bis hierhin gelesen hast |
|||
|
08-06-2024, 17:32
Beitrag: #2
|
|||
|
|||
|
RE: Empfehlung für Kamerastandorte und passende Kameras (Einfamilienhaus)
Um diese Fragen korrekt zu beantworten benötigt man sicherlich - trotz Deiner ausführlichen Beschreibung - noch einige weitere
Angaben. Die Herren, die hier mit hauptberuflichem Hintergrund unterwegs sind, werden sicherlich nicht Deine Planung für Lau machen oder überprüfen und den anderen Usern würde ich - hoffentlich trete ich jetzt keinem auf die Füße - die geballte Fachkompetenz absprechen, dieses Projekt so zu planen oder zu überprüfen, dass Du nachher auch zufrieden bist.Nur zur Kenntnis, damit Du als Newcomer verstehst, warum es keiner machen wird: Es gibt Programme, dort gibt man die entsprechenden Daten (Abmessungen, Anforderungen, Sichtwinkel, pp.) ein, und dann spuckt das Programm die entsprechende Hardware raus. Da bei den Modellen immer neuere, leistungsfähigere Kameras auf den Markt kommen, benötigt man natürlich entsprechende Updates für das Programm. Und das alles kostet eine Stange Geld, die der Fachmann auf seine Produkte und seine Montage umschlägt. Da Du aber nur die Informationen abgreifen und vermutlich keinen Umsatz generierst, sehe ich wenig Chancen. Und die Herren lernen auch immer dazu: Einmal geholfen, wird man ständig kontaktiert und erhält dann noch negative Bewertungen, wenn die erhoffte Antwort nicht gefällt oder ausbleibt. ![]() Vielleicht hilft ja dieser Hinweis: Es gibt Anbieter (z. B. Hikvision), die bieten Türsprechanlagen, Alarmanlagen und Kameras an, so dass man nur eine Abfragestation (oder mehrere an verschiedenen Orten im Haus) und mit dem Handy auf die vorgenannte Technik zugreifen kann. Von daher solltest Du vielleicht das in die Hand eines wirklich kompetenten Facherrichter geben, als von einem Generalunternehmer auf mehrere Lose aufgeteilt die verschiedenen Wünsche von unterschiedlichen Auftragnehmer erfüllen zu lassen. Im schlimmsten Fall hast Du dann mehrere Monitore nebeneinander hängen um die unterschiedlichen Aufgaben anzugehen. ![]() Kurzum: Ich bin mir sicher, dass Du hier einzelne oder auch mehrere Fragen beantwortet bekommst, aber eine komplette Planung wird Dir hier wohl keiner machen. Und genau die wäre erforderlich, um Deine Fragen vollumfänglich zu beantworten bzw. die Vorgabe zu prüfen. Da ich nur DIY-Userin bin, kann ich auch unverblümt das aussprechen, was andere, die damit ihren Lebensunterhalt verdienen, hier aus den o. g. Gründen eher vermeiden. Also nicht wundern, wenn Du nicht das erhoffte Feedback erhältst.
Immer daran denken: Jede Kette ist nur so stark wie ihr schwächstes Glied. Wobei die Schwierigkeit ist, das schwächste Glied als solches zu erkennen, bevor es andere erkannt haben!
|
|||
|
08-06-2024, 18:14
Beitrag: #3
|
|||
|
|||
|
RE: Empfehlung für Kamerastandorte und passende Kameras (Einfamilienhaus)
Ich würde die Kameras anders planen als der Elektriker und an Stelle NAS oder dem anderen Ding würde ich einen vernünftigen Netzwerkrecorder anschaffen.
Was spricht dagegen einen lokalen Fachmann mit der Sache zu beauftragen? |
|||
|
09-06-2024, 01:09
Beitrag: #4
|
|||
|
|||
|
RE: Empfehlung für Kamerastandorte und passende Kameras (Einfamilienhaus)
Die Zeichnungen bringen nichts. Niemand kann mit dieser Vorlage eine Videoüberwachung planen. Was man dafür benötigt:
- Zeichnung des Architekten - ums Haus umlaufende Bilder zur Außengrenze. - ums Haus umlaufende Bilder zum Haus. - Geplante Bepflanzung - Google Earth Koordinaten - Budgetvorstellung Fehlt eine der genannten Komponenten, kann man nichts planen. Warum soll auf den NVR verzichtet werden? Planung + Verkauf - Remote Installationen Alarm + Videotechnik + Zutritt einbruchschutz-siegen.de |
|||
|
09-06-2024, 05:28
Beitrag: #5
|
|||
|
|||
|
RE: Empfehlung für Kamerastandorte und passende Kameras (Einfamilienhaus)
Aus den vorgegebenen Wünschen und Gegebenheiten würde ich einen Auftrag aus meinen Erfahrungswerten wahrscheinlich ablehnen.
Warum? Sehr viele Falschinformationen sind im Feld, die das Projekt so nicht professionell umsetzen lassen. Wie ssb schrieb, sind andere Informationen notwendig, um das zielführend umzusetzen. Private Objekte und deren Betreiber sind durch das Netz in Bezug auf Videosicherheit und Alarmanlagen ähnlich desinformiert wie diejenigen, die ärztliche Hilfe bei Dr. google suchen. Frei nach dem Motto, alles geht, nur die Frösche hüpfen… Nicht alles, was im Netz versprochen wird, lässt sich für ein kolportiertes Budget umsetzen. Die Projektbezogene Leistung hierzu wird achon bei 2,5 -3 h liegen. Das muss eingepreist werden. Schönen Sonntag Wahre Männer lesen keine Bedienungsanleitung! Erfahrung ist eine nützliche Sache. Leider macht man sie immer erst kurz nachdem man sie brauchte. (Goethe) |
|||
|
09-06-2024, 14:01
Beitrag: #6
|
|||
|
|||
|
RE: Empfehlung für Kamerastandorte und passende Kameras (Einfamilienhaus)
Vielen Dank für eure Antworten.
Es war nie meine Absicht eine kostenlose Planung zu erschnorren. Ganz im Gegenteil; ich bin mir bewusst, dass eine vernünftige Planung nur mit einem lokalen Fachmann sinnvoll machbar ist. Mein Problem ist, dass wir mit einem GU bauen. Wie sich nun herausgestellt hat, hat der GU den Elektriker für die Arbeiten rund um die Videoüberwachung vorgesehen. Dieser besitzt dafür aber nicht die nötigen Qualifikationen. Ich habe daher durchgesetzt, dass der Elektriker nur die LAN-Kabel an die «richtige» Stelle zieht. Den Rest werde ich nach Abschluss des Baus selber über eine Fachfirma machen lassen. Wie erkenne ich, ob eine Fachfirma etwas taugt oder nicht, wenn ich selber keine Ahnung von der Materie habe? => Die Elektroplanung muss nächste Woche finalisiert werden und ich glaube nicht, dass wir bis dahin eine lokale Fachfirma selektiert haben und von dieser eine Antwort auf die Frage der Positionierung der LAN-Anschlüsse erhalten haben werden. Die beigefügten Bilder sind vom Architekten und waren Teil der Baueingabe. Ich hätte nur noch die Geschosspläne, aber die zeigen das Innere des Hauses. Das Haus und den Garten gibt es noch nicht, folglich auch keine Bilder davon. Die geplante Bepflanzung hatte ich angegeben. Das Budget hat gefehlt. Es beträgt 6'500.- Euro (exkl. LAN-Verkabelung). Ich habe nie geschrieben (zumindest nicht bewusst), dass ich keinen NVR möchte. Ich habe nur aufgezählt, was wir bereits haben. Schön wäre, wenn man das verwenden könnte. Wenn nicht, bin ich natürlich auch für anderes offen («…oder was auch immer)»). Ich verstehe leider auch nicht, was funkistnichtalles mit den sehr vielen Falschinformationen meint. Ich habe primär die Situation beschrieben und drei Mussanforderungen formuliert. Wenn es jetzt aber ohne Fotos vom fertigen Haus nicht möglich ist den Standort der LAN-Anschlüsse zu definieren, habt ihr dann vielleicht Tipps, wie der Elektriker die Kabelinstallation am besten vorbereiten soll, damit man später die LAN-Anschlüsse ohne sichtbare Kabel an die richtige Stelle bekommt? |
|||
|
09-06-2024, 14:10
Beitrag: #7
|
|||
|
|||
|
RE: Empfehlung für Kamerastandorte und passende Kameras (Einfamilienhaus)
Draka UC900 S/FTP Kat7,0,5m Kabel aus der Wand kommen lassen, das war's.
Planung + Verkauf - Remote Installationen Alarm + Videotechnik + Zutritt einbruchschutz-siegen.de |
|||
|
09-06-2024, 14:25
Beitrag: #8
|
|||
|
|||
|
RE: Empfehlung für Kamerastandorte und passende Kameras (Einfamilienhaus)
ssb meint, an den eventuell abzusehenden Standorten (evtl auch einer oder zwei mehr) diese Auslasspunkte vorsehen. Achtung: bei Vollwärmeschutz die Kamerastützdosen des Herstellers mit vorsehen! (lassen)
Ich lasse es gerade mal durchlaufen, da wo ich gerade liege, habe ich eh Langeweile. Du bekommst nachher ne Nachricht. Wahre Männer lesen keine Bedienungsanleitung! Erfahrung ist eine nützliche Sache. Leider macht man sie immer erst kurz nachdem man sie brauchte. (Goethe) |
|||
|
15-06-2024, 13:46
Beitrag: #9
|
|||
|
|||
|
RE: Empfehlung für Kamerastandorte und passende Kameras (Einfamilienhaus)
Hallo, mit größtem Interesse habe ich diesen Beitrag geöffnet und gelesen. Ganz so trivial wie es ich mir gedacht habe scheint das ganze wohl doch nicht zu sein..
Meinerseits habe ich ca. ähnliche Anforderungen wie der TS, jedoch dachte ich mir ich knall einfach im hohen einstelligen Bereich mehrere Kameras an jede Ecke und habe somit eine Absicherung. Das ganze noch gepaart mit KI gestützten Kameras und ich bin im ersten Moment mal zu Hause sicher. Natürlich mache ich mir auch Gedanken, wohin mit den ganzen Filmmaterial vor allem im Fall der Fälle, dass es nicht vom entsprechenden Einbrecher noch dazu geklaut werden kann. Folge dessen habe ich mir mal die besten low Budgets Modelle aus der Amazon Ranking mir bestellt um testweise mal in die Materie oder gegebenenfalls auch ein Produkt welches für mich in Frage kommt zu finden. Die erhaltenen Kameras, machen ihren Dienst, haben aber auch ihre Tücken. Natürlich haben sie irgendwo alle eine KI Unterstützung, dennoch reagieren sie auf viele Bewegungen, welche meinerseits "good to know" aber nicht von Nöten sind. Z.b momentan für mich schon interessant, welche Katze etc. Sich nachts auf unserer Baustelle austobt. Auch interessant wie der Regenverlauf über die Nacht war, dennoch sollte es mir gekennzeichnet werden, dass es sich nicht um eine Bedrohung handelt. Die TP-Link Kamera macht hierzu immer eine Bewegungserkennung.. Sie kann aber schon von Lebewesen unterscheiden, so erhoffe ich mir das zumindest und habe ich registriert! Gibt es nicht relativ gute Kameras, die ich in der Nähe von Dachrinnen installieren kann (8-12 Meter Höhe) und die mir dann entsprechend sicher vorab auswerten, ob es sich um eine Bedrohung oder sonst was handelt? Prinzipiell hat niemand auf unserem Grundstück was verloren. Ein/zwei Kameras mehr oder weniger, sofern die Kamera nicht 300€ kostet macht den Bock nicht fett und ich stehe vor einer ähnlichen Frage was muss im Rohbau bereits dafür eingeplant werden? PS: Mehrere Bekannte haben Bosch als Nachrüstsysteme, aber entweder sind die schlecht konfiguriert oder es ist nicht besser als diese Kameras von Amazon. Teilweise fehlen auch einfach Aufnahmen von Bewegungen etc. Grüße & Danke |
|||
|
15-06-2024, 13:56
Beitrag: #10
|
|||
|
|||
| RE: Empfehlung für Kamerastandorte und passende Kameras (Einfamilienhaus) | |||
|
15-06-2024, 14:43
Beitrag: #11
|
|||
|
|||
|
RE: Empfehlung für Kamerastandorte und passende Kameras (Einfamilienhaus)
Bier und Chips Fred…
Viel hilft viel, oder eben auch nicht. Das Objekt wäre mit gescheiten Kams ohne Überwachungsdruck so zu lösen, dass 99,9% Auslösequalität besteht. Aber die Situation ist begraben, da einige iirrige Annahmesituation eingetreten ist. Noch ne Empfehlung: keine Freds kapern, eigenes Thema aufmachen. Bin raus.., Wahre Männer lesen keine Bedienungsanleitung! Erfahrung ist eine nützliche Sache. Leider macht man sie immer erst kurz nachdem man sie brauchte. (Goethe) |
|||
|
15-06-2024, 20:12
Beitrag: #12
|
|||
|
|||
|
RE: Empfehlung für Kamerastandorte und passende Kameras (Einfamilienhaus)
Willst Du uns hier auf's Korn nehmen? Dieser Beitrag kann doch nicht Dein ernst sein.
Eine Annekdote: Die Tage fragt mich ein Kunde, ob seine Kameras auch permanent aufzeichnen (das tun sie mittels NVR, was er nicht mehr auf dem Schirm hatte), da seinem Nachbarn mutwillig ein Baum entwurzelt wurde. Ich bestätigte ihm die 24/7 Aufnahme, schaute interesse halber mal bei ihm online vorbei und konnte da jemanden morgens um kurz nach 3 beim graben beobachten. Ich riet dem Kunden davon ab, die Aufzeichnung dem Nachbarn zur Verfügung zu stellen, da damit die Tarnung auffliegen würde, nämlich die, dass dieser Bereich mit überwacht wird und sagte dem Kunden, dass sich der Nchbar selber was anschaffen soll. Darauf wurde ich dahingehend belehrt, dass dieser ringsum Kameras installiert hat, aber aus mir unbekannten Gründen über keine Aufzeichnung verfügt. Da fühlte ich mich gut und mein Kunde ebenfalls. Planung + Verkauf - Remote Installationen Alarm + Videotechnik + Zutritt einbruchschutz-siegen.de |
|||
|
16-06-2024, 19:37
Beitrag: #13
|
|||
|
|||
RE: Empfehlung für Kamerastandorte und passende Kameras (Einfamilienhaus)
(15-06-2024 13:56)Funkalarmprofi schrieb:(15-06-2024 13:46)Messergabel schrieb: ... habe ich mir mal die besten low Budgets Modelle aus der Amazon Ranking mir bestellt ... Naja, war mal ein Versuch und man kann ja anhand von den Bewertungen schon auch Meinungen bilden ;-) (15-06-2024 14:43)funkistnichtalles schrieb: Bier und Chips Fred… Es ist ok! (15-06-2024 20:12)ssb-security schrieb: Willst Du uns hier auf's Korn nehmen? Dieser Beitrag kann doch nicht Dein ernst sein. Verstehe ich nicht, die Tarnung auffliegen würde? Was ist schlimm daran dass dieser Bereich mit überwacht wird? Meinst du wegen Datenschutz? Was bringt es dem Nachbar in der Situation jetzt selber was anzuschaffen, wenn er jetzt schon seinen Baum entwurzelt hat? |
|||
|
16-06-2024, 20:11
Beitrag: #14
|
|||
|
|||
|
RE: Empfehlung für Kamerastandorte und passende Kameras (Einfamilienhaus)
Ich gehe mal stark davon aus, dass Du hier schreibst um uns zu verscheißern. Jede andere Motivation wäre sehr befremdlich und was ich damit meine, lasse ich mal offen, weil ja bald schon wieder Weihnachten ist.
Planung + Verkauf - Remote Installationen Alarm + Videotechnik + Zutritt einbruchschutz-siegen.de |
|||
|
|
Benutzer, die gerade dieses Thema anschauen: 1 Gast/Gäste
Suche
Mitglieder
Kalender
Hilfe




Angaben. Die Herren, die hier mit hauptberuflichem Hintergrund unterwegs sind, werden sicherlich nicht Deine Planung für Lau machen oder überprüfen und den anderen Usern würde ich - hoffentlich trete ich jetzt keinem auf die Füße -
die geballte Fachkompetenz absprechen, dieses Projekt so zu planen oder zu überprüfen, dass Du nachher auch zufrieden bist.
Hinweis: Es gibt Anbieter (z. B. Hikvision), die bieten Türsprechanlagen, Alarmanlagen und Kameras an, so dass man nur eine Abfragestation (oder mehrere an verschiedenen Orten im Haus) und mit dem Handy auf die vorgenannte Technik zugreifen kann. Von daher solltest Du vielleicht das in die Hand eines wirklich kompetenten 
